Asfalt

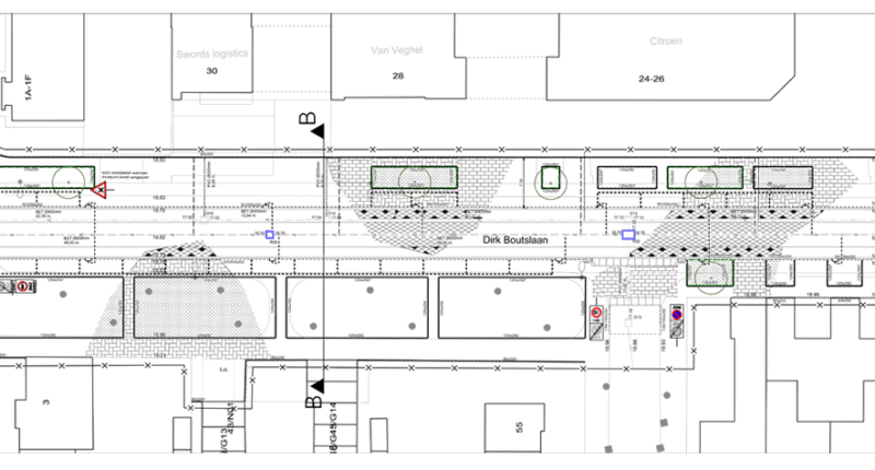
Nieuwe inrichting Dirk Boutslaan

De straten Breitnerstraat, Lucas Gasselstraat en Dirk Boutslaan zijn aan groot onderhoud toe. We vernieuwen de fundering, de rijbaan, de riolering, de parkeerstroken, het groen en de trottoirs. Het verkeersysteem rond de Kanaaldijk-Zuid wijzigt. De Dirk Boutslaan, Lucas Gasselstraat, Breitnerstraat en Kanaaldijk-Zuid worden 50-kilometerwegen. Ook komt er een regenwaterriool om regenwater gescheiden af te voeren. De werkzaamheden starten in het voorjaar van 2019.

Voor meer bewoners- en projectinformatie klik hier.